PAusblick: Neubau von 2 doppelhaushälften in Schlier
Wohnkonzept
für Familien oder
mehrere Generationen
In zentraler Lage von Schlier entstehen auf einem eingewachsenen Grundstück 2 Doppelhaushälften auch für Familien, die mehr als 2 Kinder haben.
Die Außenanlagen werden mit dem bereits vorhandenen elektrischen Einfahrtstor und einem zum Teil schon vorhandenen, bewachsenen Natursteinwall von der Straße abgeschottet.
So ist auch das unbeaufsichtigte Spielen kleiner Kinder auf dem Grundstück möglich und gleichzeitig ein gewisser Schallschutz zur Straße hergestellt.
Gemeinsam mit uns können Sie jetzt noch viele Details zum Wohnkonzept gestalten und ihr zukünftiges Zuhause mitgestalten.
Details (vorbehaltlich behördlicher Genehmigung)
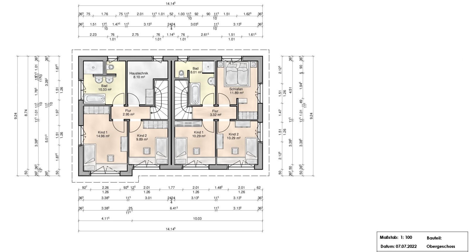
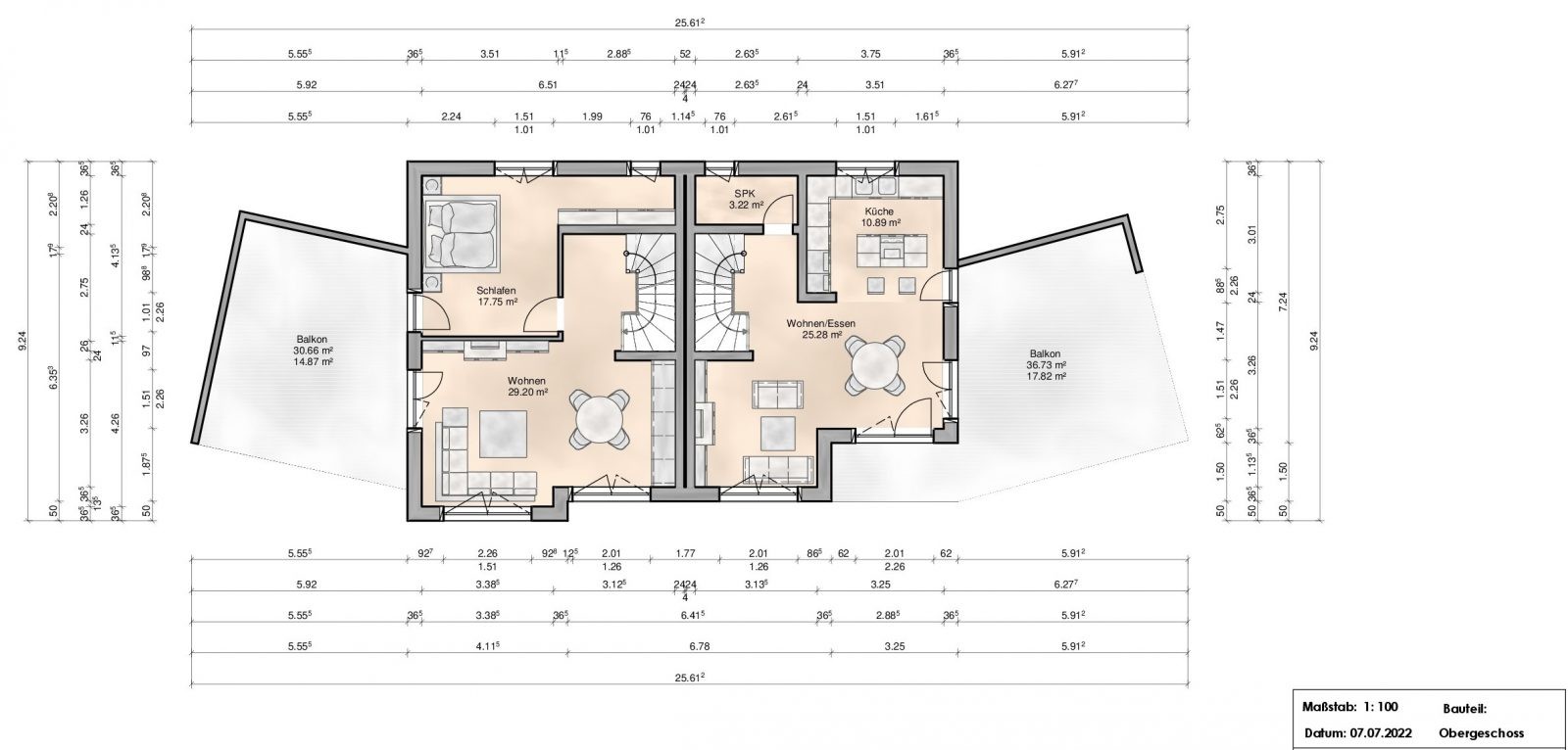
- Geplant ist ein schlüsselfertiges Doppelhaus mit je ca. 135-160 m² Wohnfläche pro Hälfte.
- 2-3 Kinderzimmern, 1 Schlafzimmer, 1 Bad, 1 HWR, 1 Gästezimmer/Büro sowie Wohn-Essbereich, offene Küche, Speisekammer und ASR.
- Sie können den Grundriss bei der Raumaufteilung bis November 2022 noch mitbestimmen.
- Die Grundversorgung erfolgt aus einer Wärmepumpe mit Speicher in eine Fußbodenheizung.
- Dazu gehört auch eine Photovoltaik-Anlage, die Vorbereitung für den Anschluss einer Wall-Box, Fingerprint mit elektrischer Panikverriegelung am Eingang, Sichtbetonelemente.
- Es stehen zwei Grundstücke mit anteiliger Gemeinschaftsfläche zur Verfügung. Eines wird ca. 720 m², das andere ca.920 m² haben.
- Kaufvertragsabwicklung und Werkvertrag erfolgen aus einer Hand, so dass Sie nur eine Schnittstelle für das Gesamtprojekt haben.
- Die zu verarbeitenden Materialien für Wände, Fußböden, Elektro und Sanitär bemustern Sie aus einer reichhaltigen Auswahl z.T. in unserem Musterhaus und z.T. direkt bei den ausführenden Handwerksunternehmen aus der Region.
- Pflasterarbeiten, Rollierung, Terrassen und Rasenflächen werden ebenfalls von uns gestaltet.
- Der Bau erfolgt ausschließlich schlüsselfertig incl. Außenanlagen, sie müssen nur ihre Möbel mitbringen.
Die Fertigstellung ist bis Weihnachten 2023 geplant.

Exterior Design
Eine moderne Architektur, die funktionsgeprägt ist, bestimmt das äußere Design des Hauses. Geplant sind Eingangstür, Fenster und Fensterbänke sowie die Außenbeschattung in einem modernen Anthrazit (DB703) zu gestalten. Dies soll mit dezenten Schlammtönen an der Fassade kombiniert werden, die durch den Wechsel in der Helligkeit eine kleingliedrige Ansicht erzeugen sollen. Moderne Formate mit hochliegenden Fenstern auf der Nord- und Ostseite und bodentief auf der Süd- und Westseite sollen für optimale Belichtung sorgen, ohne innen die Raumnutzung einzuschränken.
Eine Überdachung des Eingangs mit Sichtbetonelementen sowie Betonwerkstein als quadratisches Pflaster und individuell ausgewählte Terrassenbeläge sollen das moderne Design abrunden. Der Garten wird entlang der teilweise eingewachsenen Grenze vollflächig bis zum Pflaster mit Rasen ausgeführt. Um das Haus wird eine Rollierung in anthrazit farbenen Basaltkies angelegt die in Kantensteine gefasst sind.

Interior Design
Selbstverständlich bestimmen Sie das Design Ihres Hauses. Vorgegeben sind einige bauliche Elemente, wie z.B. die Treppe aus Sichtbeton (SB2), die von einem Betonkosmetiker perfekt aufgearbeitet und versiegelt wird. Alle Wand- und Deckenbekleidungen, Fußböden, elektrische und elektronische Bedienelemente sowie Sanitärobjekte wählen Sie bei Bemusterungen in unserem Musterhaus oder direkt bei den regionalen Lieferanten aus.

Construction Management
Als Bauträger und Initiator des Bauvorhabens sind wir der verantwortliche Ansprechpartner.
Gern möchten wir Sie in einem persönlichen Gespräch kennenlernen und Ihnen unverbindlich die Rahmenbedingungen des Projekts vorstellen.
Die Häuser werden in unserer Verantwortung und unter unserer Leitung schlüsselfertig und incl. Außenanlagen zum Festpreis hergestellt.
Sie als Kunde müssen nur noch Ihre Küche und Ihre Möbel mitbringen und haben für das gesamte Bauvorhaben nur eine Schnittstelle.
Alle Subunternehmer kommen aus der oberschwäbischen Region.
Bis November haben Sie noch die Möglichkeit, den Grundriss nach Ihren Anforderungen zu verändern. Dann soll Bauantrag gestellt werden.
Unter der Voraussetzung, dass die Baugenehmigung bis zum Frühjahr vorliegt, soll im März 2023 mit dem Bau begonnen und zu Weihnachten 2023 fertiggestellt werden.
Alle Details zur Ausstattung legen wir gemeinsam mit Ihnen bei den Bemusterungen und natürlich in einem ausführlichen Werkvertrag fest.
folgende Kalkulation hat sich für die beiden Häuser bis heute ergeben und kann sich noch durch individuelle Anpassungen ändern:
Haus Nr. 11, ca. 156 m² Wfl., ca. 920 m² Grundstück, Doppelgarage, Terrassen, Außenanlagen
Grundstück 329.000 EURO (357,60 €/m²), Haus 450.000 EURO (2.890 €/m²), Garagen 15.000 EURO, Außenanlagen 34.000 EURO = Gesamtpreis 828.000 EURO
Voraussichtliche Nebenkosten: 329.000 x 7% = 23.000 EURO (5% Grunderwerbsteuer, 1,5% Notarkosten, 0,5% Amtsgerichts- + Grundbuch-Kosten)
Haus Nr. 13, ca. 134 m² Wfl., ca.720 m² Grundstück, Doppelgarage, Terrassen, Außenanlagen
Grundstück 259.000 EURO (359,70 €/m²), Haus 450.000 EURO (3.360 €/m²), Garagen 15.000 EURO, Außenanlagen 34.000 EURO = Gesamtpreis 758.000 EURO
Voraussichtliche Nebenkosten: 259.000 x 7% = 18.100 EURO (5% Grunderwerbsteuer, 1,5% Notarkosten, 0,5% Amtsgerichts- + Grundbuch-Kosten)
Wir freuen uns, Sie beraten zu dürfen und sorgen auf Wunsch auch für eine Finanzierung.
Projektstand
- 40% Projektplanung
- 25% Projektverkauf
- 10% Projektabwicklung
Info
Derzeit befinden wir uns in der Bauantragsvorbereitung mit der Umsetzung aus den Hinweisen der Bauvoranfrage.
Ihr Interesse vorausgesetzt, können Sie gern schon jetzt auf uns zu kommen.
So haben wir die Möglichkeit, ihre individuellen Wünsche, sofern möglich, im Genehmigungsverfahren entsprechend zu berücksichtigen.
Kontaktieren Sie mich
Gern stehe ich ihnen für ihre Fragen zur Verfügung und freue mich, Sie auch persönlich kennen zu lernen.
HBI(at)heinevetter-rv.de
Raueneggstr. 43 – 88212 Ravensburg
+49 751 888 783 7